Квартира по адресу: Москва, Новодевичий проезд, 10, общая площадь 44.7 (№74325)

Москва, Новодевичий проезд, 10
Тип объявления Продажа
Количество комнат 2
Этаж 5
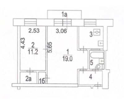
Общая площадь 44.7 м2
Этажность 8
Жилая площадь 30.3 м2
Площадь комнат 19.3 м2, 11 м2
Площадь кухни 5.4 м2
Балкон балкон
Санузел совмещенный
Ремонт Косметический
Тип дома кирпичный
Год постройки дома 1961
 

Историческая часть Москвы, Новодевичий монастырь, красивейшие пруды, набережная реки, МГУ. Престижный район Хамовники. Все лучшее для жизни рядом. Кирпичный дом 1961 года постройки, основательно и надежно. Есть лифт. Двухкомнатная квартира,  площадь 44,7 метра + балкон 0,70 метра.   Предлагаем 2- комнатную квартиру на 5 этаже, окна на Новодевичий монастырь и сквер. Красивейшая панорама.  Общая площадь квартиры без учета балкона 44,7 кв.м, одна комната 19,3 кв.м (проходная) плюс балкон 0,7 кв.м, вторая комната 11,0 кв.м + большая кладовая, кухня 5,40 кв.м, прихожая 4,9 кв.м, ванная комната 4,1 кв.м.  Квартира очень теплая и светлая, есть кондиционер, последний ремонт в 2007 году, новые окна. Двор огорожен и закрыт шлагбаумом, тихий и ухоженый.  В собственности более 5 лет, 1 собственник. Без обременений  и ограничений. Альтернатива подобрана.Номер объекта: #5/788868/4945

Похожие предложения

Выгодные предложения - ловите момент!

Ваш персональный менеджер

Если у вас появились вопросы, напишите нам!