Снять 2-к квартиру, 53 кв.м., Москва, Хамовники, Саввинская наб, 3 (№74391)

Москва, Хамовники, Саввинская наб, 3
Категория объекта квартира
Тип объявления Аренда
Район Хамовники
Метро Киевская
Количество комнат 2
Этаж 4
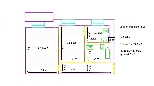
Общая площадь 53.8 м2
Этажность 9
Жилая площадь 34 м2
Балкон балкон
Санузел совмещенный
Вид из окон во двор
Ремонт Евроремонт
Год постройки дома 1946
  в месяц

Сдается в аренду на длительный срок уютная двухкомнатная квартира в самом центре Москвы на престижной Саввинской набережной. Квартира на 4 этаже 9-ти этажного кирпичного дома.свободна, готова к заселению. Общая площадь квартиры – 53,8 м2, жилая – 34 м2 (спальня 20,4 и гостиная 13,5). Просторный балкон с выходом из спальни. Высокие потолки 3,2 м. При ремонте использованы натуральные отделочные материалы. Квартира укомплектована всем необходимым для проживания. Кухня оснащена варочной панелью с духовкой, вытяжкой, имеется холодильник, микроволновая печь. Совмещенный санузел полностью облицован керамической плиткой. Оснащен стиральной машиной. Просторный коридор. Оплата: 120000 в месяц + платежи по счетчикам (вода, электричество, интернет). Страховой депозит - 1200000. Коммунальные платежи включены в стоимость аренды. Кроме прекрасной набережной для прогулок в пешей доступности большой благоустроенный сквер Девичьего поля - прекрасное место для круглогодичного отдыха. Поблизости множество ресторанов и клубов, спортивный комплекс, бассейны, теннисные корты, ТЦ Европейский, парк с прудом у Новодевичьего монастыря и другие прекрасные улицы и достопримечательности столицы. Удобный выезд на ТТК, Садовое кольцо, Новый арбат, Кутузовский проспект; 10 минут пешком до станции метро "Киевская". Ждем ваших звонков ! ​​​​​​​Показы по договоренности, в удобное для вас время. Номер объекта: #5/788922/4945

Похожие предложения

Выгодные предложения - ловите момент!

Ваш персональный менеджер

Если у вас появились вопросы, напишите нам!