Аренда недвижимости, коммерческая, Красногорск, Золотая ал, 1 (№74307)

Московская область, Красногорск городской округ, Красногорск, Золотая ал, 1
Категория объекта коммерческая
Категория коммерческого объекта помещения свободного назначения
Этаж 1
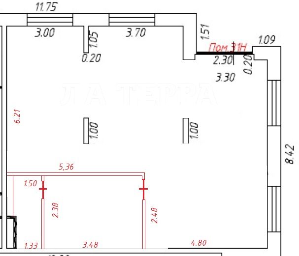
Общая площадь 82.3 м2
Этажность 6
  в месяц

Первая линия! Лучшая локация! Отделка! Сдается помещение свободного назначения на 1 этаже 6 этажного дома в 15 минутах от МЦД Опалиха в новом ЖК "8 кленов". Площадь помещения составляет 82.30 квадратных метров, что делает его идеальным вариантом для организации и реализации самых разных видов бизнеса: аптеки, кафе, кулинарии, торговые предприятия, салоны красоты и многое многое другое. Помещение с частичной отделкой, но есть возможность сделать проект, отремонтировать и декорировать его под свои потребности, с минимальными затратами и быстро начать свою деятельность. Одним из основных преимуществ данного помещения является удобное расположение - первая линия, хорошая просматриваемость с улицы, витринные эффектные окна. Жилой квартал активно заселяется, малое количество коммерческих помещений в нем позволяет работать при низкой конкуренции. Помимо удобного расположения, помещение имеет отличную планировку, которая позволяет оптимально использовать пространство и организовать рабочие зоны, торговый зал, зал салона красоты или другие необходимые помещения. Планировка дает возможность создать уютную и продуктивную атмосферу для работы коллектива. Мы готовы обсудить с вами все детали аренды данного помещения и предоставить вам дополнительную информацию по запросу. Наша команда профессионалов всегда готова помочь вам подобрать идеальное помещение под ваш бизнес, учитывая все ваши требования и предпочтения. Не упустите возможность арендовать уникальное помещение свободного назначения в престижном районе города. Обратитесь к нам сегодня и мы поможем вам сделать правильный выбор для вашего бизнеса!Номер объекта: #5/788858/4945

Похожие предложения

Выгодные предложения - ловите момент!

Ваш персональный менеджер

Если у вас появились вопросы, напишите нам!